Astronautenlaan 184

Astronautenlaan 184

HELMOND

verkocht

Ook jouw woning succesvol verkopen? Neem dan contactmet ons op

Gratis waardebepaling

Omschrijving

In de rustige en geliefde woonwijk van Helmond presenteren we met trots deze ruime en sfeervolle eengezinswoning aan de Astronautenlaan 184. Deze charmante tussenwoning, gebouwd in 1973, biedt maar liefst 139 m² aan woonoppervlakte en is de ideale plek voor gezinnen die op zoek zijn naar ruimte, comfort en een prettige leefomgeving. Met 5 kamers, waaronder 3 ruime slaapkamers, en een heerlijke tuin, is dit een woning waarin het hele gezin zich direct thuis zal voelen.


Een woning met potentieel
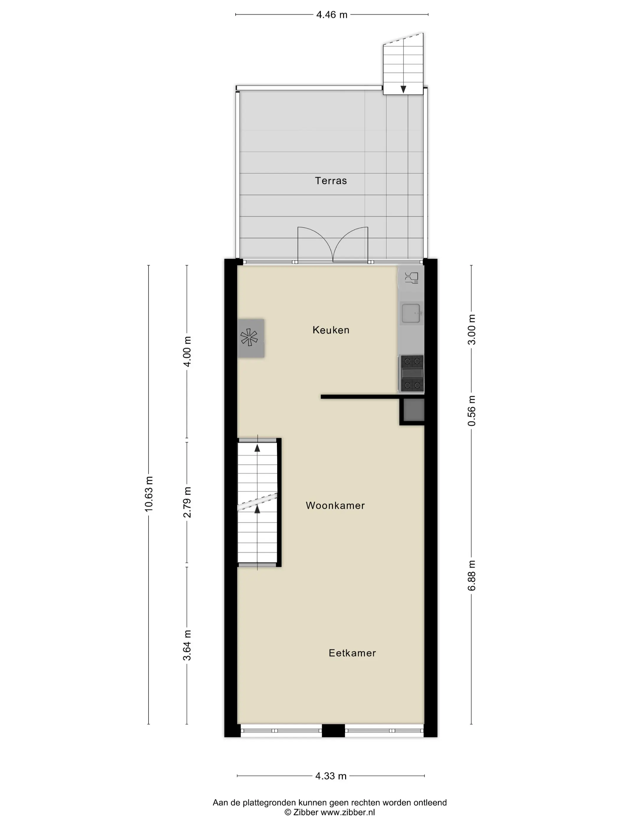
Zodra je de woning binnenstapt, valt direct de ruime opzet op. De lichte en royale woonkamer vormt het hart van het huis en biedt volop mogelijkheden voor een gezellige inrichting. Dankzij de gunstige indeling voelt de ruimte open en luchtig aan, en geniet je van veel natuurlijk licht. De keuken, praktisch ingedeeld en met zicht op de tuin, biedt volop mogelijkheden voor culinaire creativiteit.


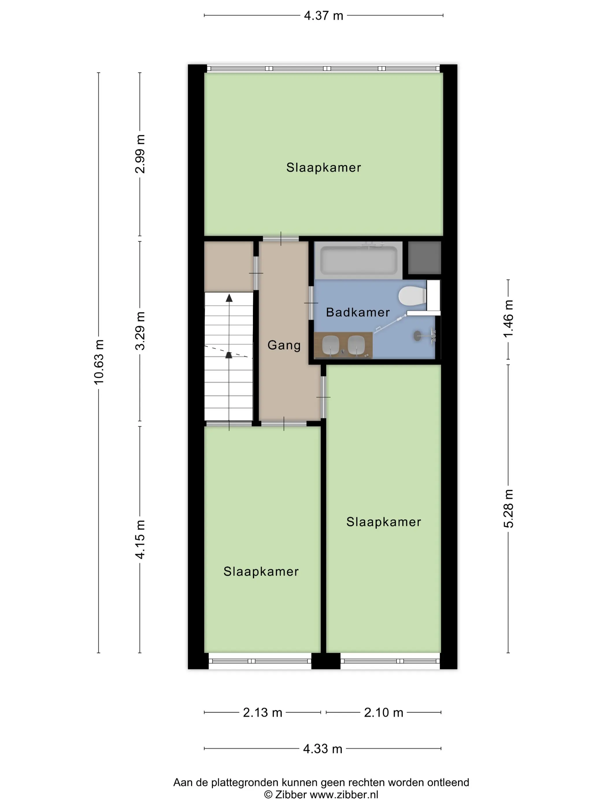
De woning beschikt over drie ruime slaapkamers, waarvan één master bedroom die uitkijkt op de rustige achtertuin. Elke slaapkamer biedt voldoende opbergruimte en heeft een fijne lichtinval, ideaal voor zowel ouders als kinderen. Met 5 kamers in totaal heb je daarnaast nog volop ruimte voor bijvoorbeeld een werkkamer, hobbyruimte of logeerkamer.


Fraaie buitenruimte
De tuin is een absoluut pluspunt van deze woning. De zonnige achtertuin biedt een rustige plek om te ontspannen en is onderhoudsvriendelijk aangelegd. Of je nu groene vingers hebt of gewoon wilt genieten van het buitenleven zonder veel onderhoud, deze tuin biedt tal van mogelijkheden. Ook de voorzijde van de woning heeft een verzorgde uitstraling, waardoor de woning meteen een fijne indruk maakt.


Duurzaam en efficiënt
De woning heeft energielabel B, wat betekent dat je verzekerd bent van een energiezuinig huis. Dit wordt mede mogelijk gemaakt door de goede isolatie en het gebruik van een efficiënte C.V.-ketel voor verwarming en warm water. Dit zorgt niet alleen voor comfort in de koudere maanden, maar ook voor lage energiekosten.


Ligging en voorzieningen
De woning is gelegen in een rustige en kindvriendelijke buurt, waar je kunt genieten van de gemoedelijke sfeer en alle faciliteiten binnen handbereik hebt. Scholen, supermarkten en openbaar vervoer zijn op korte afstand te vinden, waardoor deze locatie ideaal is voor gezinnen. Daarnaast zijn er in de directe omgeving verschillende parken en speelplaatsen, perfect voor jonge kinderen en om te genieten van de buitenlucht.


Waarom kiezen voor Astronautenlaan 184?

- Ruime en lichte woning met 139 m² woonoppervlakte
- Energielabel B, wat zorgt voor een energiezuinige woning
- 3 ruime slaapkamers, ideaal voor gezinnen
- Kindvriendelijke buurt met alle voorzieningen in de buurt
- Rustige en zonnige achtertuin, perfect om te ontspannen
- Uitbreidingsmogelijkheden: de woning biedt volop potentieel voor verdere modernisering of aanpassingen naar eigen smaak


Plan je bezichtiging
Kortom, Astronautenlaan 184 biedt alles wat je zoekt in een comfortabele gezinswoning. De woning combineert een uitstekende ligging met veel ruimte en tal van mogelijkheden om er je eigen droomhuis van te maken. Dus wees er snel bij en plan een bezichtiging!
Lees meer

Kenmerken

Overdracht

Status
verkocht
Aanvaarding
in overleg

Bouw

Soort woning
woonhuis
Soort woonhuis
eengezinswoning
Type woonhuis
tussenwoning
Aantal woonlagen
3
Bouwjaar
1973
Onderhoud binnen
redelijk
Onderhoud buiten
redelijk

Energie

Energielabel
B
Warm water
cv ketel

Oppervlakten en inhoud

Woonoppervlakte
139 m²
Perceeloppervlakte
149 m²
Inhoud
450 m³
Inpandige ruimte oppervlakte
14 m²
Buitenruimte oppervlakte
18 m²

Indeling

Aantal kamers
5

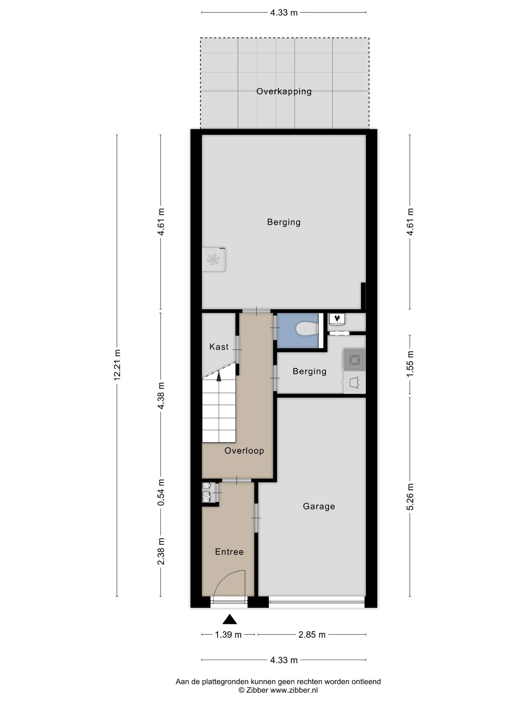
Garage / Schuur / Berging

Garage
inpandige garage
Parkeergelegenheid
openbaar parkeren
Schuur/berging
vrijstaand hout

Foto's

Plattegronden

Locatie

Video's

Vraag een bezichtiging aan of neem contact met ons op