Giessenstraat 11 – ruime en verzorgde hoekwoning met garage in groene, kindvriendelijke wijk
Ben je op zoek naar een instapklare woning met verrassend veel leefruimte, een moderne afwerking én een rustige ligging? Dan is Giessenstraat 11 in Tilburg zeker de moeite van het bekijken waard. Deze goed onderhouden hoekwoning beschikt over een lichte woonkamer, moderne keuken, moderne badkamer, drie volwaardige woonlagen, een nette tuin met berging én een garage met elektrische deur. Voeg daar de fijne ligging in de wijk Huibeven (Reeshof) aan toe, en je hebt een woning waar je zó in kunt trekken.
Begane grond – licht, ruim en instapklaar
Via een kleine overkapping kom je binnen in de hal, waar direct het verzorgde en modern afgewerkte toilet met fontein en meubel opvalt. Ook de meterkast bevindt zich hier. Vanuit de hal loop je door naar de woonkamer.
De woonkamer is opvallend licht dankzij de grote raampartijen en de gunstige hoekligging. De wanden zijn strak gestuct en de ruimte voelt modern en sfeervol aan. Er is plek voor een comfortabele zithoek én een gezellige eethoek.
Aan de achterzijde van de woning bevindt zich de open keuken. Deze is uitgevoerd met witte fronten en beschikt over een spoeleiland met zitgedeelte. Uiteraard is de keuken voorzien van de benodigde inbouwapparatuur. Het spoeleiland maakt koken niet alleen praktisch, maar ook gezellig: je blijft altijd in contact met het gezelschap aan tafel of op de bank.
Via de woonkamer leidt een klein halletje naar de trapopgang. Onder de trap bevindt zich een afgesloten trapkast – handig voor extra opbergruimte.
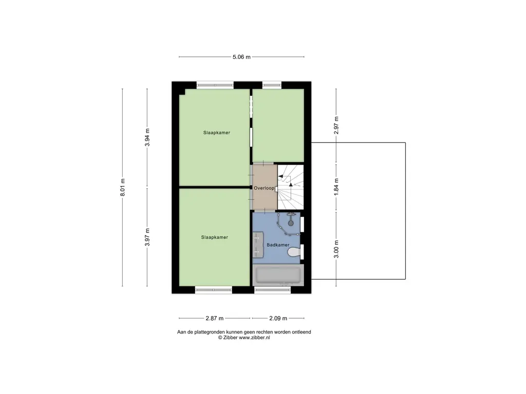
Eerste verdieping – drie ruime slaapkamers en een luxe badkamer
Op de eerste verdieping zijn drie ruime slaapkamers aanwezig, beide voorzien van een nette laminaatvloer, gestucte wanden en grote ramen die veel daglicht binnenlaten.
De badkamer is modern en compleet uitgevoerd: je vindt hier een hangtoilet, dubbele wastafel met meubel, een inloopdouche, een ligbad met jets en een designradiator. De combinatie van donker tegelwerk, strakke lijnen en het comfort maken van deze badkamer een fijne plek om tot rust te komen.
Tweede verdieping – multifunctionele zolderverdieping
Via een vaste trap bereik je de tweede verdieping. Deze zolder is netjes afgewerkt met een laminaatvloer en beschikt over knieschotten voor extra bergruimte. Dankzij het dakraam (kantelraam) valt er prettig daglicht binnen. Hier bevindt zich ook de aansluiting voor de wasmachine. De woning is aangesloten op stadsverwarming, dus er is géén losse cv-ketel aanwezig. Deze ruimte is zeer geschikt als werkkamer, hobbyruimte, logeerkamer of zelfs als vierde of misschien wel vijfde slaapkamer.
Buitenruimte – onderhoudsvriendelijke tuin, twee bergingen en overdekt terras
De achtertuin is verzorgd en grotendeels bestraat, met enkele borders voor een groene uitstraling en weinig onderhoud. Achter in de tuin bevinden zich een houten berging en een stenen berging. Hierdoor is er meer dan voldoende ruimte voor het opbergen van fietsen, (tuin)gereedschap, kliko’s of bijvoorbeeld seizoensspullen.
Grenzend aan een van de bergingen ligt een sfeervol overdekt zitgedeelte op houten vlonders. Dit terras onder de overkapping is een heerlijke plek om beschut buiten te zitten – zowel op warme zomerdagen als op regenachtige momenten. Dankzij de hoekligging van de woning geniet je hier van extra privacy.
Naast de woning bevindt zich een ruime garage met elektrische deur. ideaal voor extra opslag of veilig parkeren. De garage beschikt over water en elektra.
Locatie – rustig wonen met voorzieningen dichtbij
Giessenstraat 11 ligt in Huibeven, een rustige en ruim opgezette wijk in stadsdeel Reeshof. Deze buurt staat bekend om haar groene karakter, brede straten, speeltuintjes en een kindvriendelijke sfeer.
Voor gezinnen is dit een ideale plek om te wonen: basisschool Helen Parkhurst ligt op slechts enkele minuten lopen en ook kinderopvang en buitenschoolse opvang zijn in de buurt te vinden. Voor de dagelijkse boodschappen kun je terecht bij meerdere supermarkten zoals Jumbo, Plus en Albert Heijn, allemaal op korte fietsafstand.
De bereikbaarheid is uitstekend. Bushaltes bevinden zich op loopafstand en station Tilburg Reeshof ligt op slechts tien minuten fietsen. Met de auto ben je binnen enkele minuten op de Bredaseweg en rijd je vlot door naar de A58 richting Breda, Eindhoven of ’s-Hertogenbosch. Ook het centrum van Tilburg is goed bereikbaar, zowel met de auto als het openbaar vervoer.
Daarnaast biedt de omgeving volop recreatiemogelijkheden, zoals het nabijgelegen Reeshofpark, sportvelden, wandelroutes en speeltuinen. Alles wat je nodig hebt voor een comfortabele leefomgeving is aanwezig.
In het kort:
- Ruime en lichte hoekwoning
- Moderne open keuken met spoeleiland en inbouwapparatuur
- Nette afgewerkte woonkamer met veel daglicht
- Drie ruime slaapkamers (mogelijkheid tot vierde)
- Luxe badkamer met ligbad (jets), inloopdouche en dubbele wastafel
- Zolder met dakraam, laminaatvloer, verwarming en wasmachineaansluiting
- Stadsverwarming
- Garage met elektrische deur en elektra
- Onderhoudsvriendelijke achtertuin met bergingen en overkapping
- Rustige, groene en kindvriendelijke woonomgeving
- Voorzieningen, scholen, OV en uitvalswegen binnen handbereik
Maak snel een afspraak
Zie jij jezelf hier al wonen? Wacht dan niet te lang, want woningen als deze zijn zeer gewild! Neem contact op voor een bezichtiging en ervaar zelf het comfort, de ruimte en de fijne ligging van deze woning.
Bel RE/MAX Optimus Makelaars voor een afspraak – Ik leid je graag persoonlijk rond!