Locatie & omgeving
Deze hoekwoning is gelegen in de rustige, kindvriendelijke wijk Vliedberg. Voorzieningen zoals speeltuinen, basisscholen en supermarkten bevinden zich op loopafstand. Deze woning ligt nabij uitvalswegen A59, A2; ideaal voor forenzen richting ’s-Hertogenbosch of Eindhoven en heeft een centrale ligging t.o.v. steden en natuurgebieden (bossen, De Moerputten).
Wonen aan de Irenelaan 60 is comfortabel wonen met alles binnen handbereik.
Kenmerken & indeling
Begane grond
Als je aankomt bij de woning loop je via de betegelde voortuin naar de voordeur van de woning.
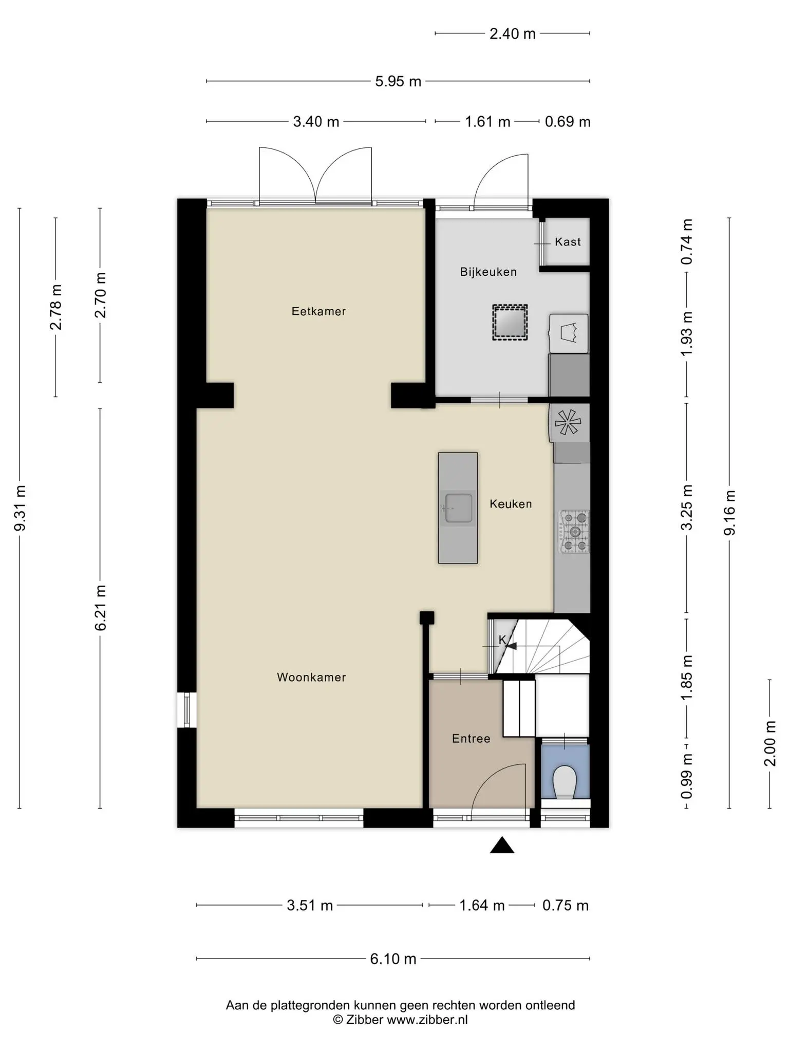
Via de voordeur kom je in de entree met hal, meterkast en separaat toilet. Vanuit de hal betreed je de doorzonwoonkamer met een vinylpanelen. De woonkamer heeft veel lichtinval en biedt ruimte voor een gezellige zithoek en eettafel. Daarna kom je in de moderne open keuken met spoeleiland. De keuken heeft mooie donkere fronten, inbouwapparatuur en losse koel-vries combinatie. Via een deur in de keuken betreed je de bijkeuken.
De bijkeuken beschikt over een aansluiting voor de wasmachine en droger. Deze bijkeuken heeft veel opbergruimte door de moderne aanwezige kasten die overeenkomen met de look van de open keuken. Via de achterdeur in de bijkeuken loop je naar de verzorgde achtertuin met eigen achterom.
Eerste verdieping
Via de vaste trap in de hal bereik je de overloop met toegang tot drie slaapkamers voorzien van een laminaatvloer. De badkamer biedt een dubbele wastafel met daarboven een spiegel. Een badkamermeubel is aanwezig voor het opbergen van handdoeken of toiletartikelen. Er is een designer radiator aanwezig voor het drogen van de handdoeken.
Verder is er een inloopdouche en hangtoilet.
Zolder
Via een vlizotrap komt je op de zolder met CV ketel. Deze ruimte is ideaal als opbergruimte of eventueel uitbreiding naar een vierde slaapkamer. Deze ruimte is naar eigen inzicht in te richten.
Buitenruimte
De tuin is ruim van opzet en je kunt buiten heerlijk genieten van het zonnetje op het verhoogde terras. De tuin is grotendeels betegeld en voorzien van plantenbakken. Er is een eigen achterom via de poort. Achterin de tuin bevindt zich een stenen garage die vanuit de tuin via een deur bereikbaar is. Tevens is de stenen garage bereikbaar vanaf de straat middels een kanteldeur. Deze kanteldeur moet handmatig worden geopend. In de garage is genoeg plek voor een auto, fietsen en er is er veel bergruimte.
Wilt u deze prachtige woning in een kindvriendelijke buurt bezichtigen neem dan contact met ons op.