Pallieterplein 111

Pallieterplein 111

OOSTERHOUT

verkocht

Ook jouw woning succesvol verkopen? Neem dan contactmet ons op

Gratis waardebepaling

Omschrijving

Pallieterplein 111 – Oosterhout
Ruim, licht en energiezuinig wonen in een fijne, kindvriendelijke wijk

Ben je op zoek naar een comfortabele gezinswoning met een verrassend ruime indeling, een grote zolderverdieping én een fijne tuin op een rustige locatie? Dan is deze moderne tussenwoning aan het Pallieterplein 111 precies wat je zoekt. De woning is gebouwd in 1998, heeft een energielabel A en biedt met 108 m² woonoppervlakte volop leefruimte, zowel binnen als buiten. Je woont hier in een autoluwe straat met veel parkeergelegenheid en een grote speeltuin direct tegenover de woning – ideaal voor gezinnen met kinderen.

Indeling

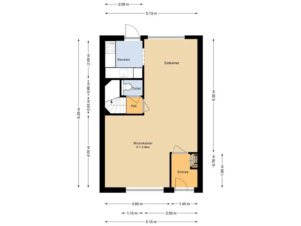
Begane grond
Je komt binnen in de ruime en lichte woonkamer. Aan de achterzijde van de woning bevindt zich de keuken, met toegang tot de tuin. De open opzet van de begane grond zorgt voor een prettige leefruimte met veel lichtinval. Centraal in de woning bevindt zich een hal met toegang tot het toilet en de trapopgang naar de eerste verdieping.

Eerste verdieping
Op de eerste verdieping bevinden zich drie slaapkamers en een badkamer. Aan de voorzijde ligt de grootste slaapkamer, met ruimte voor een groot bed en kledingkasten. Daarnaast is er een extra slaapkamer aan de voorzijde, ideaal als kinder- of werkkamer.

Aan de achterzijde bevindt zich een derde slaapkamer, evenals de badkamer. De badkamer is voorzien van een douche, toilet en wastafel en beschikt over een raam voor daglicht en ventilatie.

Zolderverdieping
De grote open zolderverdieping is een echte meerwaarde. Deze ruimte is uitermate geschikt als vierde slaapkamer, werkkamer of hobbyruimte. Dankzij het dakraam is er volop daglicht. Achter de knieschotten is extra bergruimte aanwezig.

Buitenruimte
De achtertuin is verzorgd aangelegd en biedt veel privacy. Achterin staat een vrijstaande stenen berging, ideaal voor fietsen of tuingereedschap. De tuin is bereikbaar via een achterom. Aan de voorzijde kijk je uit op een ruim opgezet speelplein met volop ruimte voor spelende kinderen.

Locatie
Pallieterplein is een rustige, kindvriendelijke woonomgeving met veel ruimte en groen. Direct voor de woning ligt een grote speeltuin. Basisscholen, winkels, sportvoorzieningen en openbaar vervoer zijn op korte afstand bereikbaar. Bovendien ben je binnen enkele minuten op de A27 richting Breda, Tilburg of Utrecht.

Bijzonderheden

* Bouwjaar 1998
* Woonoppervlakte ca. 108 m²
* Energielabel A
* Voor- en achtertuin
* Vrijstaande stenen berging
* 3 slaapkamers op de eerste verdieping
* Grote open zolder (mogelijkheid tot 4e slaapkamer)
* Grote speeltuin direct voor de deur
* Autoluwe ligging in een kindvriendelijke wijk
* Voldoende parkeergelegenheid in de straat
* Goed onderhouden en instapklaar

Kortom

Pallieterplein 111 is een moderne en verrassend ruime gezinswoning op een toplocatie in Oosterhout. Dankzij de kindvriendelijke ligging, drie volwaardige slaapkamers, een grote zolder en energielabel A is dit een ideale woning voor gezinnen of starters die op zoek zijn naar comfort, ruimte en duurzaamheid.
Lees meer

Kenmerken

Overdracht

Status
verkocht
Aanvaarding
in overleg

Bouw

Soort woning
woonhuis
Soort woonhuis
eengezinswoning
Type woonhuis
tussenwoning
Aantal woonlagen
3
Bouwjaar
1998
Onderhoud binnen
goed_tot_uitstekend
Onderhoud buiten
goed_tot_uitstekend
Voorzieningen
rolluiken, airconditioning
Isolatie
dakisolatie, hr glas

Energie

Energielabel
A
Verwarming
cv ketel
Warm water
cv ketel
C.V.-ketel
gas gestookte cv-ketel uit 2018 van HR 107, eigendom

Oppervlakten en inhoud

Woonoppervlakte
108 m²
Perceeloppervlakte
143 m²
Inhoud
374 m³
Bergruimte oppervlakte
7 m²

Indeling

Aantal kamers
5

Garage / Schuur / Berging

Garage
geen garage
Parkeergelegenheid
openbaar parkeren
Schuur/berging
vrijstaand steen

Foto's

Locatie

Downloads

Video's

Vraag een bezichtiging aan of neem contact met ons op