Spoeleind 14

Spoeleind 14

BEST

verkocht

Ook jouw woning succesvol verkopen? Neem dan contactmet ons op

Gratis waardebepaling

Omschrijving

Spoeleind 14 – Best
Unieke, instapklare gezinswoning met verrassende indeling en veel leefruimte

Bent u op zoek naar een ruime en perfect onderhouden woning waar u zó in kunt trekken? Dan is Spoeleind 14 in Best precies wat u zoekt. Deze verrassend ingedeelde hoekwoning (maar liefst 189 m² woonoppervlak
) biedt enorm veel mogelijkheden: een royale woonkamer op de eerste verdieping, een luxe keuken, vier slaapkamers (met optie voor vijf), en een prachtig aangelegde tuin met veranda. Daarbij is de woning de afgelopen jaren volledig gemoderniseerd en uitstekend onderhouden.

Indeling Royale woonkamer, een luxe keuken,

Begane grond
De begane grond is multifunctioneel en biedt volop ruimte voor uiteenlopende woonwensen. Aan de achterzijde bevindt zich de royale Siematic keuken met kookeiland en moderne inbouwapparatuur (inductiekookplaat 2021, vaatwasser 2021, koelkast 2020). Daarnaast zijn er twee ruime kamers die uitstekend te gebruiken zijn als slaapkamers, werkkamer of speelruimte.

Uniek is de extra ruimte aan de voorzijde, momenteel ingericht als kapsalon. Deze ruimte leent zich perfect voor een praktijk aan huis, atelier of kantoor. Verder beschikt de begane grond nog over een praktische berging.

Eerste verdieping
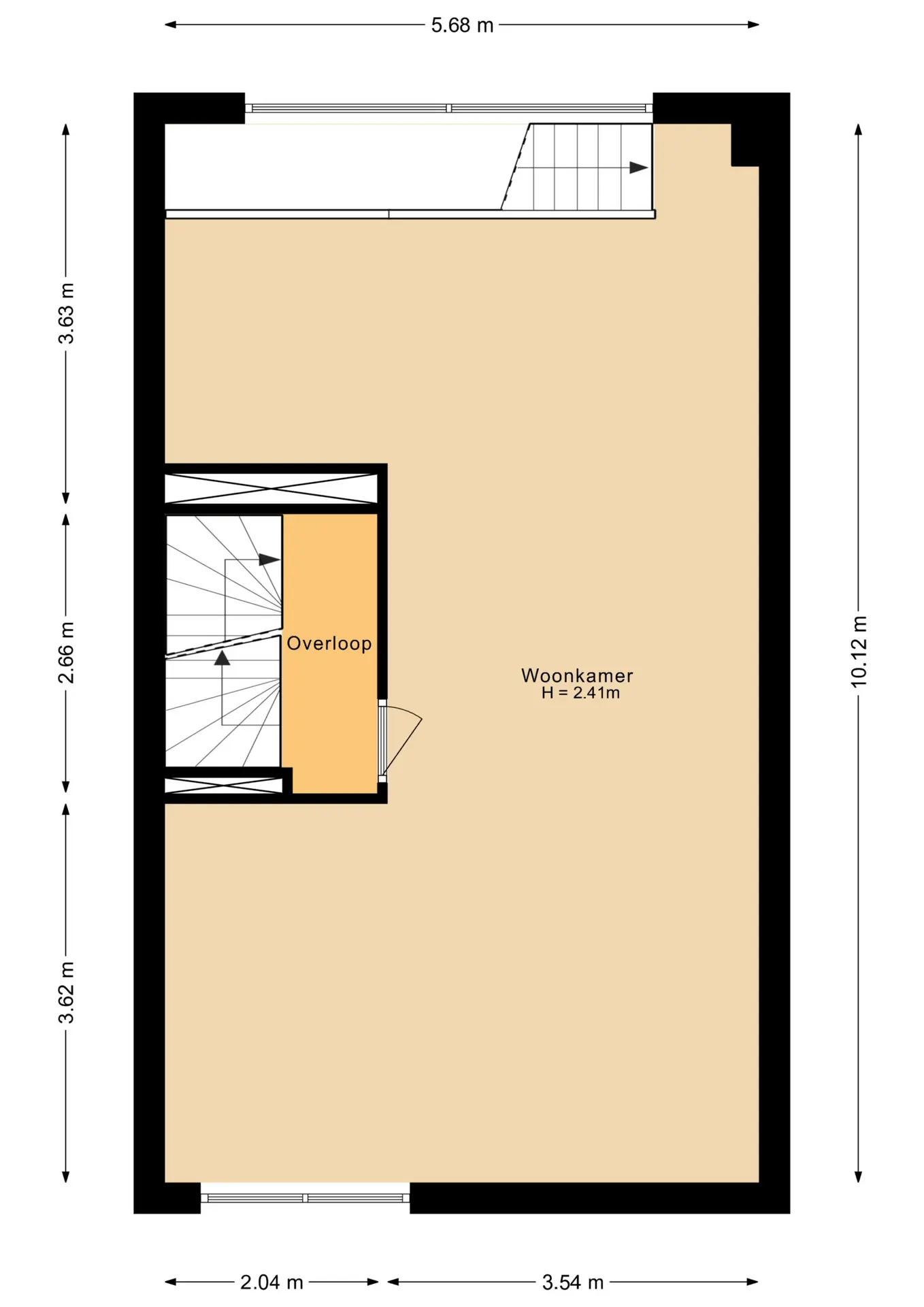
De eerste verdieping is één grote woonkamer. Dankzij de grote ramen stroomt het daglicht binnen en ontstaat een heerlijk ruimtelijk gevoel. De fraaie wengé vloer geeft deze verdieping een warme en luxe uitstraling. Hier heeft u volop plek om verschillende zit- en eetgedeeltes te creëren.

Tweede verdieping
Op de bovenste verdieping bevinden zich twee slaapkamers, een berging en de in 2022 vernieuwde prachtige badkamer. Deze is uitgerust met een ligbad, inloopdouche, modern wastafelmeubel en een tweede toilet.

Buiten

De achtertuin is in 2023 volledig opnieuw betegeld en ingericht. Een heerlijke plek om te ontspannen of gasten te ontvangen. De royale veranda (2020) met tuinverlichting maakt het buitenleven compleet. Verder is er een zij-ingang en een handig huisje voor containers. Ook de voortuin en oprit zijn in 2023 vernieuwd en bieden plaats voor meerdere auto’s.

Pluspunten op een rij

Bouwjaar 2002

Woonoppervlakte 189 m², perceel ca. 242 m²

Begane grond: luxe keuken, twee ruime kamers, kapsalonruimte en berging

Eerste verdieping: gigantische woonkamer met wengé vloer

Tweede verdieping: 2 slaapkamers, berging en luxe badkamer (2022)

Toilet vernieuwd in 2022

Grote Siematic keuken met recent vernieuwde apparatuur

14 zonnepanelen (2017)

Waterontharder (2020)

Airco (2009)

Remeha Calenta cv-ketel (2019)

Veranda (2020) met tuinverlichting

Zij-ingang naar de tuin en huisje voor containers

Schilderwerk volledig vernieuwd in 2020 en sindsdien bijgehouden

Nieuwe hoogglans binnendeuren

Glasvezelnetwerk en tv-aansluitingen in woonkamer, keuken en slaapkamers

Meubels eventueel ter overname

Locatie

De woning ligt in een rustige, kindvriendelijke straat in Best, met scholen, sportvoorzieningen, winkels en uitvalswegen in de directe nabijheid. Dankzij de gunstige ligging woont u hier rustig, maar toch met alle voorzieningen binnen handbereik.

Kortom

Spoeleind 14 is een instapklare, luxe gezinswoning met een verrassende indeling en volop mogelijkheden. Perfect onderhouden, energiezuinig dankzij de zonnepanelen, en voorzien van alle moderne gemakken. Een woning die u echt gezien moet hebben!
Lees meer

Kenmerken

Overdracht

Status
verkocht
Aanvaarding
in overleg

Bouw

Soort woning
woonhuis
Soort woonhuis
eengezinswoning
Type woonhuis
hoekwoning
Aantal woonlagen
3
Bouwjaar
2003
Onderhoud binnen
goed_tot_uitstekend
Onderhoud buiten
goed_tot_uitstekend
Voorzieningen
zonnecollectoren, glasvezel kabel
Isolatie
dakisolatie, muurisolatie, vloerisolatie, volledig geisoleerd, hr glas

Energie

Energielabel
A
Verwarming
cv ketel, vloerverwarming gedeeltelijk
Warm water
cv ketel
C.V.-ketel
gas gestookte cv-ketel uit 2017 van Remeha Calenta, eigendom

Oppervlakten en inhoud

Woonoppervlakte
189 m²
Perceeloppervlakte
250 m²
Inhoud
635 m³
Inpandige ruimte oppervlakte
7 m²
Buitenruimte oppervlakte
11 m²

Indeling

Aantal kamers
6

Buitenruimte

Ligging
in woonwijk
Tuin
achtertuin met een oppervlakte van 87 m² en is gelegen op het noordwesten

Garage / Schuur / Berging

Garage
geen garage
Parkeergelegenheid
openbaar parkeren, op eigen terrein
Schuur/berging
inpandig

Foto's

Locatie

Downloads

Video's

Vraag een bezichtiging aan of neem contact met ons op